15 Madison Street, Unit 1

Listed for $838,000
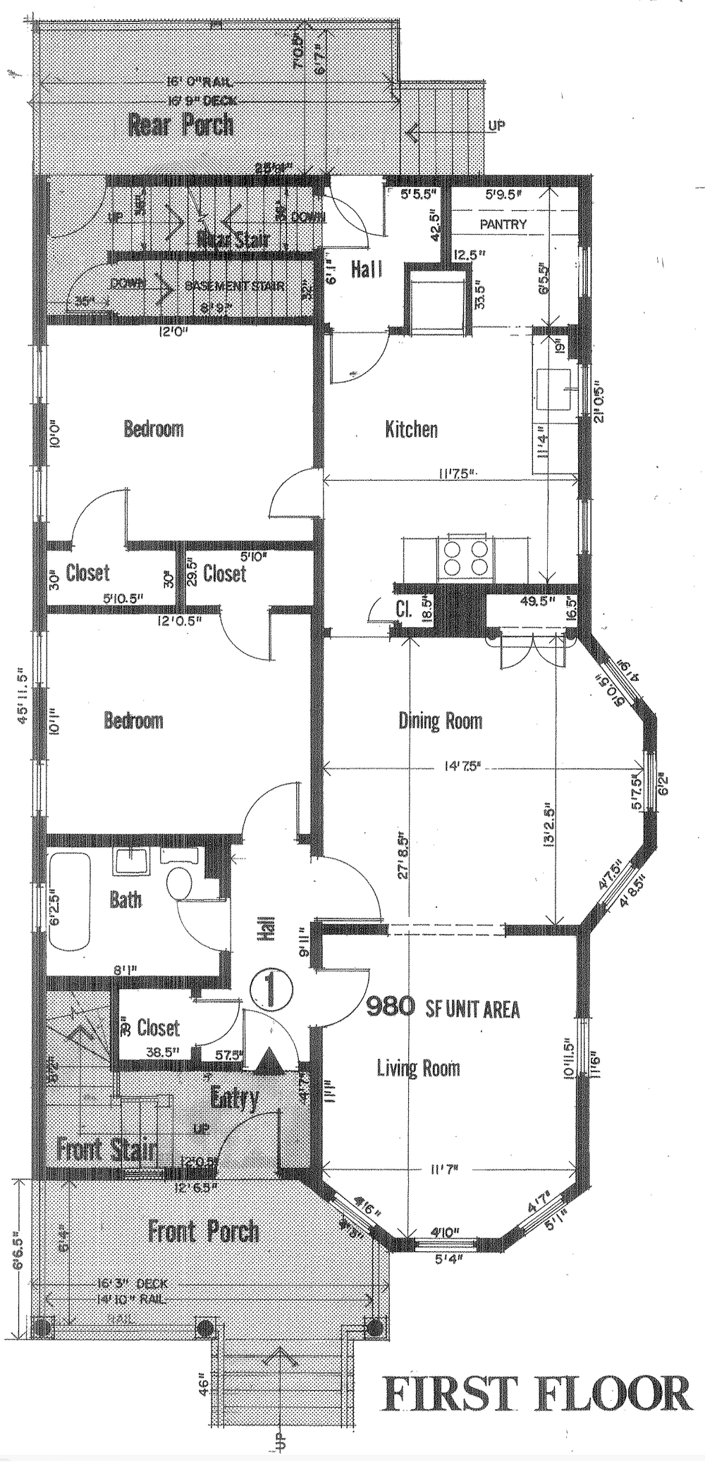
Set on a pretty residential street on Observatory Hill, between Harvard Square and Huron Village, this first floor two bedroom condominium at 15 Madison Street offers a sense of ease that feels both grounded and connected. Inside, the layout unfolds across 980 sq ft, with well proportioned rooms that flow naturally from one to the next. The arrangement feels open, yet defined enough to give each space its own purpose and character, blending traditional and more modern ways of living. Light moves easily through the space, bringing warmth and clarity throughout. At the back, a sunny kitchen serves as a natural gathering point, opening to a small yard and patio and creating an easy connection between indoor and outdoor living. The two bedrooms offer flexibility for guests, a home office, or additional breathing room, and dedicated basement storage adds everyday practicality. A well balanced home in a location that offers both connection and a sense of belonging.
Property Details
Interior
Size: 980 square feet
Rooms: 5
Bedrooms: 2
Bathrooms: 1 full
Storage: Dedicated storage area in the basement
Exterior
Material: Wood & asbestos shingle
Roof: Rubber (2004)
Outdoors: common patio and back porch
Parking: On street with a permit
Systems
Heat: Steam radiators by oil (boiler 2000)
Electrical: Circuit breakers
Hot Water: Tank by gas (2020)
Laundry: Shared with Unit #2 in the basement
Other
Year Built: 1912
Converted: 1985
Taxes: $5,381.26 without residential exemption ($1,876.09 with residential exemption)
Monthly Fee: $224/mo. (typically paid annually)
Fee Includes: Water, sewer & master insurance
Occupancy: 2 of 3 units are owner occupied
Rental Policy: 90 day minimum
Pet Policy: Not to exceed one pet; not to exceed 40 lbs.
% Interest: 28%
Disclosures
The association has the right of first refusal.
Roof & boiler are older.
Seller welcomes offers with requests for buyer concessions.




